施工事例情報
広さから選ぶ
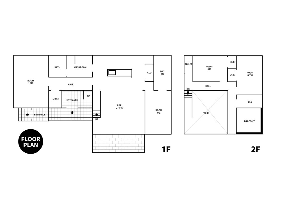
延床面積
153.19m²(46.33坪)
1F床面積
114.27㎡(34.56坪)
2F床面積
38.92㎡(11.77坪)
那珂市
お施主様が選んだ白・黒・グレーの潔い配色は、シンプルでいて力強さと上質さが漂う空間を造り出しました。
床材は石目柄でホテルのような空間に。階段の仕様やアクセントのエコカラット、照明など細部にまで厳選されたこだわりの一邸です。
広さから選ぶ
延床面積
153.19m²(46.33坪)
1F床面積
114.27㎡(34.56坪)
2F床面積
38.92㎡(11.77坪)
お施主様が選んだ白・黒・グレーの潔い配色は、シンプルでいて力強さと上質さが漂う空間を造り出しました。 床材は石目柄でホテルのような空間に。階段の仕様やアクセントのエコカラット、照明など細部にまで厳選されたこだわりの一邸です。
玄関ホールの正面とニッチにはアクセントにエコカラットを採用。 ダウンライトの陰影が質感を際立たせ、存在感のあるデザインにしました。 落ち着きのある上質な雰囲気でゲストをお迎えする、印象的なエントランスです。
開放性と独立性のバランスを叶えたセミオープンキッチン。 作業中の水はねや油はねを抑えながらも、リビングにいる家族の様子を見守り、自然に会話ができる設計です。 機能性とデザイン性を兼ね備えた、心地よいコミュニケーション空間になっています。
外観はモノトーンでまとめ、高低差のある四角いフォルムがシャープな印象を与えるデザイン。
玄関まわりにはアクセントとして「ラグナロック」を採用し、岩肌のような力強い凹凸感が住まい全体に個性と重厚感をプラスしています。シンプルでありながら存在感のある佇まいが魅力です。
横にのびたシンプルな間取りが特徴的で、平屋のような暮らしやすさを実現。
生活動線をコンパクトにまとめつつ、吹き抜けを中心にした開放感のある空間構成で、毎日の暮らしがスムーズに。
【POINT】
・開放感のある吹き抜けリビング
・2階ホールとつながる設計でプライベートと共有のバランスを考慮
・セミオープンのスタイリッシュなキッチン
・エコカラットで彩る玄関ホールやリビング
・モノトーンでまとめたシャープな外観デザイン

AKARAが家づくりで大切にしていることはとてもシンプルです。暮らしのイメージを対話とCGパースで作り上げ、愛着のある家を創ります。